
3D打印的应用领域





一、3D打印当前产业发展的态势:
1、对3D打印当前产业发展态势的基本判断:
3D打印技术自2011年开始在国内进入高速发展期以来,仅仅在短短四年时间里,产业规模即由2011年的不足10亿元扩大至2016年的近51.65亿元,到2020年3D打印技术在中国的发展规模将有望突破200亿元,仅管与传统制造几万亿的规模不能相题并论,但它一旦通过信息技术与传统制造业结合起来,所引爆的经济规模将难以估计。

2、3D打印当前产业应用人才的需求:




3、3D打印技术服务企业发展及人才供应情况:
首板制作仍然是3D打印下游技术服务主要的产品市场,主要集中于江浙、福建及广东地区,据调查,仅佛山市顺德地区需要手板制作师就达1400个,厦门大千公司手板制作年销售额过亿。其产品主要涉及汽车、玩具、家用电子和日用消费品。但据这些地区和企业反映,由于手板制作商增多,竞争激烈,价格下降,手板制作的质量和标准却在提高,企业对手板制作的用工选择:一是需要手板制作规划师、工艺师、设备操作工;二是提高了手板后处理的质量标准。

企业认为还是从制造企业直聘有竞争力,因为此类人员有实际经验好用。企业认为既能掌握3D打印机操作,又同时熟悉传统制造工艺、打印成品报价人员,是当前企业生产人员中的紧缺。
4、结论:
* 3D打印当前产业推广应用、功能不足是主要矛盾,社会培训不足,企业认知度不高,开展3D打印技术应用培训具有很大的需求。
* 企业在产品创新和开发方面仍然动力不足,能够掌握数字技术进行产品设计人才短缺,开展数字化创意设计需求迫切。
* 产业、行业已有很多现实应用,但缺乏对应用的专业特点和工艺路径的规律认识及总结提升,所以开展3D打印技术与行业结合应用十分必要。
* 产业发展需求与学校培养目标两者之间出现一定的偏差,产教融合度低,学校为产业培养支撑性人才的针对性较弱,加强校企互动,培养企业急需人才势在必行。
* 、职业院校有着紧密靠近市场、贴近企业产品技术工艺、与企业合作紧密的优势,大力进行企业和社会培训,发挥职业院校优势,促进3D打印及数字制造技术尽快落地企业生产,促进企业转型升级,是职业院校发展的一个选择。
二、3D打印应用技术专业师资介绍
1、先进制造训练中心主任 张敏娟
要获奖经历及荣誉:
获2010年陕西省技工教育和职业培训优秀教研成果教案类一等奖;
获2013年度全省技工教育和职业培训教研成果教案类一等奖;
2016年被学院评为先进工作者,西电公司年度先进工作者、院长奖励基金;
主要参与教研成果或出版教材:
“中等职业学校内涵建设”课题、
“基于职业素养培养导向的技工院校专业技能课程教学模式研究”课题、
“预备技师培养课程体系建设与实施”课题;
在西安交通大学机械学院攻读增材制造工程硕士期间参与国家青年基金冷喷涂课题及多项专利的申请。
2、中国大能手 赵 鹏
主要获奖经历及荣誉:
《中国大能手》—三维印象(3D打印)项目的全国总冠军
“陕西省首席技师” “陕西省技术状元”
“陕西省技术能手” “西安市技术状元”
“青年岗位能手” “西安市职业技能带头人”
主要参与出版教材:
《数控车床编程说明》 《数控车床操作指导》
《数控车削加工实训教程》 《小型机械产品制作》
《数控机床编程与操作》 《数控加工技术手册》
《预备技师培养课程体系建设与实施》
3、陕西省技术能手 王勇强
主要获奖经历及荣誉:
“陕西省技术状元”
“机械工业技术能手”
“陕西省第二届技工院校数控专业学科带头人”
“西安工匠”
主要参与教研成果或出版教材:
《数控手工编程技术及实例详解—西门子系统》
《数控加工工艺及实例详解》
《国家技能人才培养标准》
《一体化课程规范》课题的开发。
2011年参加机床切削加工专业示范校建设数控加工技术课程课题开发
4、陕西省技术能手 余 欣
主要获奖经历及荣誉:
“陕西省技术能手”
“先进工作者”
“优秀班主任”
主要参与教研成果或出版教材:
《数控加工实训指导-车削分册》
《数控加工实训教程》
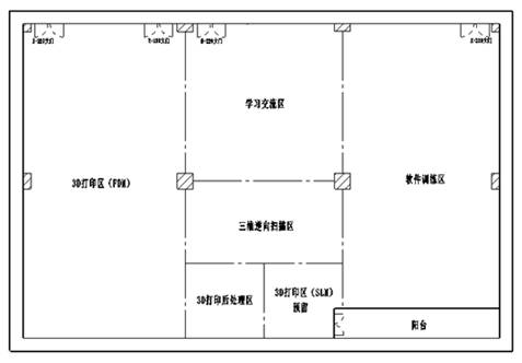
三、3D打印应用技术专业硬件设施

合理的功能区域划分让同学的学习不会相互影响

科学的设施设备布局让你的学习思路更加清晰

小组讨论的学习模式,激发你的学习热情

专业的图形工作站让你设计变得游刃有余

众多的3D打印打印机让你的实习不在排队

专业的3D打印机让你的设计快速变成现实

扫描一个自己让3D打印机打印出来应该是一个很酷的事情

先进的手持三维扫描仪让你的设计更加快捷方便
同学们,如果您想亲身体验3D打印的全过程,制作一个属于自己独一无二的纪念品!快快来校参观了解,机电技术系将带您畅游3D世界!